U bent hier
Ontwikkeling gebied tussen Sint-Stevenstraat en R4
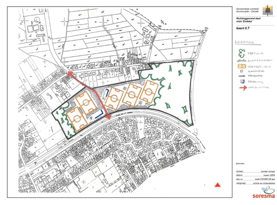
De gemeente startte onlangs de opmaak van het ruimtelijk uitvoeringsplan (RUP) Endeke dat de inrichting van het gebied tussen de Sint-Stevenstraat en de R4 zal bepalen.
De opmaak van dit plan kreeg prioriteit om de doortrekking van de Karnemelkstraat naar de R4 mogelijk te maken als alternatieve ontsluiting voor de KMO-zone Karnemelkpolder. De bereikbaarheid van dit bedrijventerrein komt immers in het gedrang wanneer later de Stekkerweg en de Sint-Stevenstraat worden onderbroken bij de herinrichting van de Tractaatweg en de R4-Oost. In Nederland voorziet men de afwerking van de verdubbeling van de Tractaatweg tegen 2017. Bij de plannen voor de omvorming van de R4-Oost gaat men ervan uit ten vroegste in 2018 te kunnen starten. Dat betekent meteen dat Zelzate tegen dan klaar moet zijn met de plannen voor de alternatieve weg.
Het spreekt voor zich dat men samen met de plannen voor de nieuwe verbindingsweg tussen de Karnemelkstraat en de R4 ook de mogelijke toekomstige invulling van het volledige gebied aanpakt. In 2005 werd een voorlopige en richtinggevende visie op het gebied opgenomen in het Gemeentelijk Ruimtelijk Structuurplan van Zelzate. Deze visie wordt nu geactualiseerd, verder verfijnd en uitgewerkt in een voor de toekomst bruikbaar inrichtingsplan.
In de pers verschenen berichten dat de start van de opmaak van het RUP meteen betekende dat er groen licht werd gegeven voor de aanleg van sportterreinen en sportaccomodaties in het gebied Endeke. Dat is absoluut niet het geval. De meerderheidspartijen hebben nog steeds GEEN GROEN LICHT gegeven voor de aanleg van de sportterreinen in die zone. Het standpunt van N-VA hierin blijft duidelijk: wij zijn niet tegen de komst van sportinfrastructuur op die plaats maar wij stellen als voorwaarde dat de financiële haalbaarheid voor de gemeente bewezen worden. Tot nu toe is dit niet gebeurd.
Martin Acke
Schepen van Verkeer en Mobiliteit


